New Homes for Sale
Articles
Professionals
Log in
Sign up
Photos 1
Videos 0
Map
Interactive floor plan 0
Virtual 0
Hatteras Plan
By
Regent Homes
|
Eagles Rest
Community
Available homes
Get updates
Save
Request info
Request info
Community
Available homes
Request info
Get updates
Save
Request info
Eagles Rest
Get updates
Request info
Sold
Sold
5
3
1
From 3,994
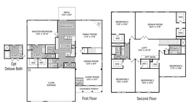
Hatteras Plan details
Address:
Chapin, SC 29036
Plan type:
Detached Two+ Story
Beds:
5
Full baths:
3
Half baths:
1
SqFt:
From 3,994
Ownership:
Condominium
Interior size:
From 3,994 SqFt
Lot pricing included:
Yes
Hatteras Plan is now sold.
Check out available communities below.
Similar 5 bedroom plans nearby
view all
WREN
Livingston Woods
From $352,990
Northwest Columbia, Irmo
WESTERLY
Livingston Woods
From $435,990
Northwest Columbia, Irmo
TILLMAN
Livingston Woods
For sale
Northwest Columbia, Irmo
ROBIE
Livingston Woods
From $330,990
Northwest Columbia, Irmo