hero-image-0

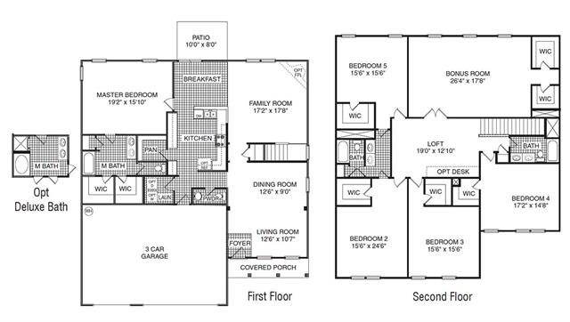
Hatteras Plan

By

D.R. Horton

   |   

Eagles Nest

Eagles Nest
Sold
Sold
5
3
1
From 3,994
unit-banner-imageunit-banner-imageunit-banner-image
Hatteras Plan details
Hatteras Plan is now sold.
Check out available communities below.