



























Get additional information including price lists and floor plans.

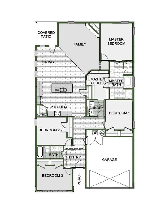
This 2150 square foot home features 4 bedrooms and 2 bathrooms. The main living area includes a large living room that flows seamlessly into a modern kitchen and dining area, creating the perfect space for entertaining guests. With its thoughtful design and practical amenities, this home is perfect for those seeking a comfortable and functional living space.
Stay informed with Livabl updates on new community details and available inventory.