


































Get additional information including price lists and floor plans.
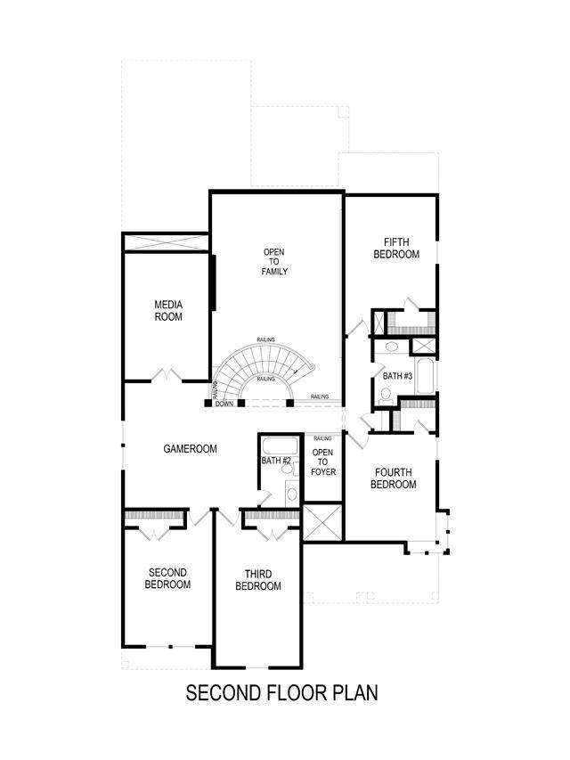
This 5 bedroom 31/2 bathroom plan is designed with a spacious dining area, study and powder room, large gourmet kitchen, as well as a game and media room upstairs, great for entertaining or hanging out with the family. Additional features include extensive trim work, custom architectural detail throughout, tile floors in all wet areas, security system and so much more! Dont forget, with every First Texas, Gallery Custom or Harwood Home you will have the flexibility to customize our plans to fit your family perfectly. ***Some features shown on layout may be optional. Consult with the Sales Counselor for community plan specific features.***
Stay informed with Livabl updates on new community details and available inventory.