



































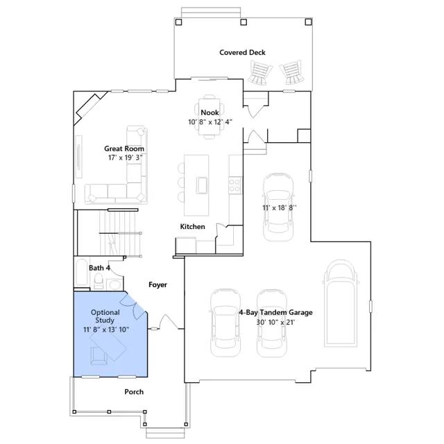
The Great Room, kitchen and dining nook are arranged among a convenient and contemporary open floorplan on the first level of this two-story home, offering access to the covered patio and a tech niche. A bedroom situated off the foyer is ideal for overnight guests. Four additional bedrooms occupy the second level, all of which have direct access to a private bathroom.
Stay informed with Livabl updates on new community details and available inventory.