

























































Get additional information including price lists and floor plans.
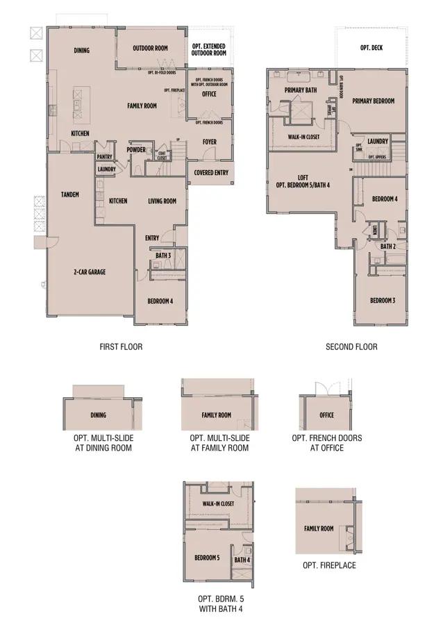
Meadow plan 8 is a two-story home with 3,320 approximate square feet and up to 4 bedrooms and 4.5 baths. In addition to the main living space, a separate living space is offered with its own private entry that leads to its own kitchen, great room, bedroom, and full bathroom. The main living space features an office off the entry, large dining and great room, and an island kitchen that flows seamlessly into both rooms. The second floor features two secondary bedrooms, laundry room, and an oversized loft with the option of making it into bedroom 5 with an ensuite bath. The primary bedroom with the private bath and walk-in closet complete the second floor.
Stay informed with Livabl updates on new community details and available inventory.