hero-image-0

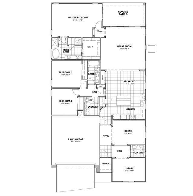
Prato - Plan 4066 Plan

Shannon Estates
Sold
Sold
3
2
1
From 2,230
unit-banner-imageunit-banner-imageunit-banner-image
Prato - Plan 4066 Plan details
Prato - Plan 4066 Plan is now sold.
Check out available nearby plans below.