








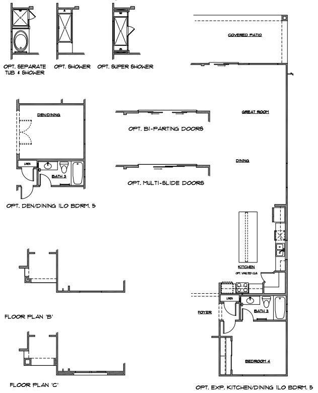
This one-story home is 2196 sq. ft. with five bedrooms, 3 baths, and a two car garage. It will immediately impress you. The floorplan is perfect for entertaining with an open, spacious layout. It’s single level features a great room containing the family area, dining area, and large kitchen with a walk in panty. It offers an optional 12’ wall of glass with either bi-parting doors or multi-slide glass doors. The floor plan is open, spacious and alluring. The kitchen has generous cabinets, but if you want even more, you can increase the kitchen’s layout for additional space. The laundry room is conveniently located in the center of the home, not too far from any room. The master bedroom is spacious with a large walk-in closet and a bath that offers three bath options including the 8’ “Super Shower” with dual shower heads. This home is a must see! Source: Hillstone...
Stay informed with Livabl updates on new community details and available inventory.