New Homes for Sale
Articles
Professionals
Log in
Sign up
Photos 3
Videos 0
Map
Interactive floor plan 0
Virtual 0
5651 Magnolia de Percy Dr.
By
D.R. Horton
|
Magnolia Springs
Community
Get updates
Save
Request info
Request info
Community
Request info
Get updates
Save
Request info
Magnolia Springs
Get updates
Request info
Sold
Sold
2
2
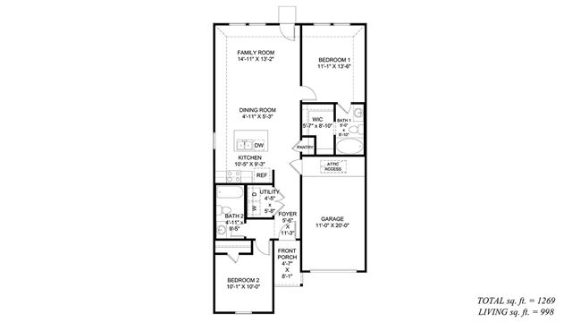
998
5651 Magnolia de Percy Dr. details
Address:
Carville, LA 70721
Plan type:
Detached Single Story
Beds:
2
Full baths:
2
SqFt:
998
Ownership:
Fee simple
Interior size:
998 SqFt
Lot pricing included:
Yes
5651 Magnolia de Percy Dr. is now sold.