





























































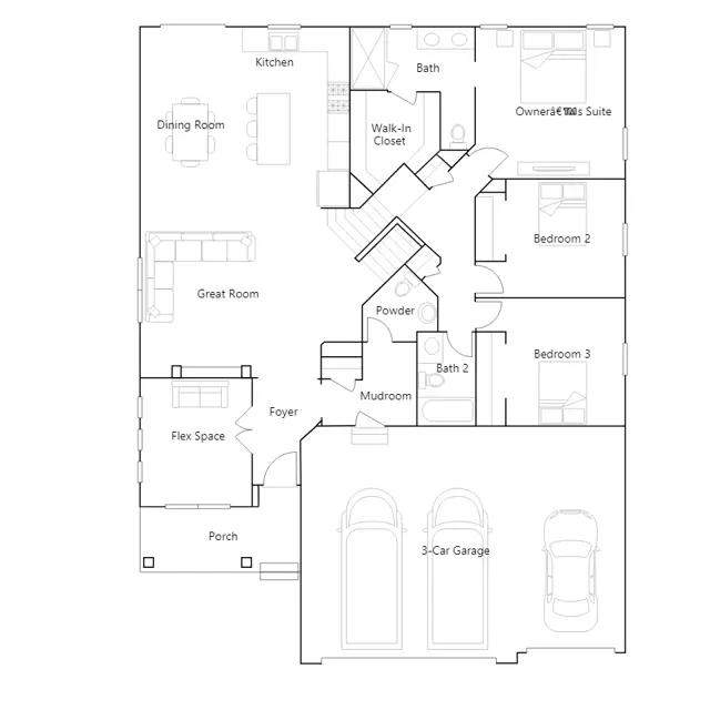
This new two-story home showcases a modern design. The main level features an open layout among the Great Room, dining room and kitchen, while flex space overlooks the front porch. Upstairs, two secondary bedrooms and the owners suite provide personal retreats for family members.
Stay informed with Livabl updates on new community details and available inventory.