


































































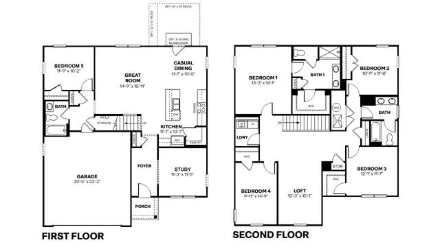
Welcome to the Henley in Fairwood. This two-story home available in Plainfield provides 5 large bedrooms and 3 full baths featuring one bedroom and full bath on the main level. The staircase enters from the family room for convenience and privacy. The kitchen offers beautiful cabinetry, quartz countertops, a large pantry and a built-in island with ample seating space. Also on the main level, you'll find a spacious study, perfect for an office space, as well as a bedroom. Upstairs, you'll find 4 additional bedrooms, including one that features a walk-in closet, as well as a 2nd living area that can be used as a great entertainment space. Like all D.R. Horton homes, the Henley includes America's Smart Home Technology featuring a smart video doorbell, smart Honeywell thermostat, smart door lock, Deako light package and more. Photos are representat...