




























Get additional information including price lists and floor plans.



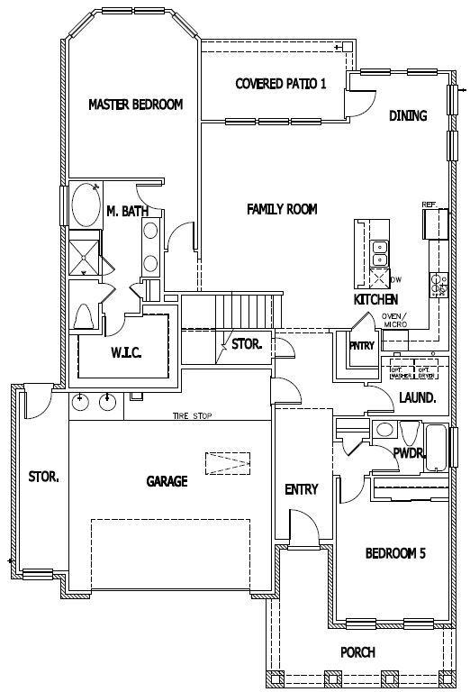
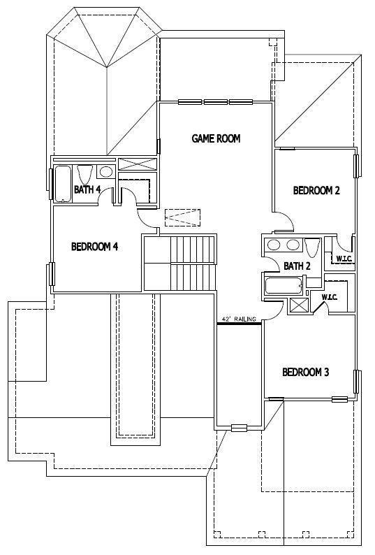
The Kinney is a striking two story home featuring four bedrooms, two and a half bathrooms, study and kitchen with a large island open to the family room. The spacious master suite is located on the first floor. Three additional bedrooms, an additional bathroom and game room are located on the second floor. Options for personalizing this plan include a media room, secondary bedroom and bathroom on the first floor, master bathroom layout, third full bathroom, covered patio, 5' storage area at the garage, and 3-car garage.
Stay informed with Livabl updates on new community details and available inventory.