hero-image-0
hero-image-1
Woodmont Golf and Country Club
Sold
Sold
3
3
1
From 2,950
unit-banner-imageunit-banner-imageunit-banner-image
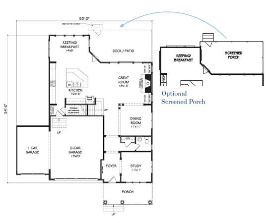
The Darien Plan details
The Darien Plan is now sold.
Check out available nearby plans below.