hero-image-0
hero-image-1
hero-image-2
hero-image-3

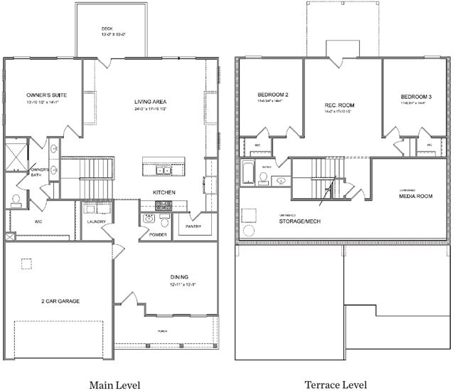
The Beaufort Plan

By

The Providence Group

and

Green Brick Partners

   |   

Idylwilde

Idylwilde
Sold
Sold
2
3
3
1
From 2,336
The Beaufort Plan details
The Beaufort Plan is now sold.
Check out available nearby plans below.