





























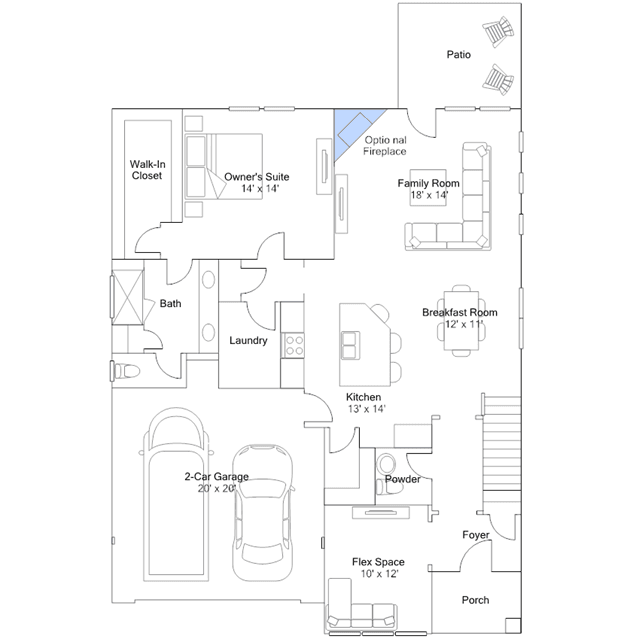
This new two-story home is optimized for gracious living. On the first floor, the owners suite is tucked in a back corner for added privacy. The open-plan kitchen, breakfast room and family room open out to the patio, and a flex space can be made into an optional study. Upstairs are three secondary bedrooms and a loft.