




















































Get additional information including price lists and floor plans.
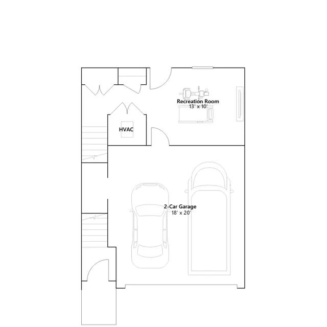
A new three-story townhome features a versatile recreation room and two-car garage upon entry. The second floor hosts a modern open-concept layout situated among the Great Room, dining area and kitchen, along with a flex space ideal for at-home work. At the top level are all three bedrooms to provide peaceful retreats, including the owners suite with a private bathroom.
Stay informed with Livabl updates on new community details and available inventory.