hero-image-0

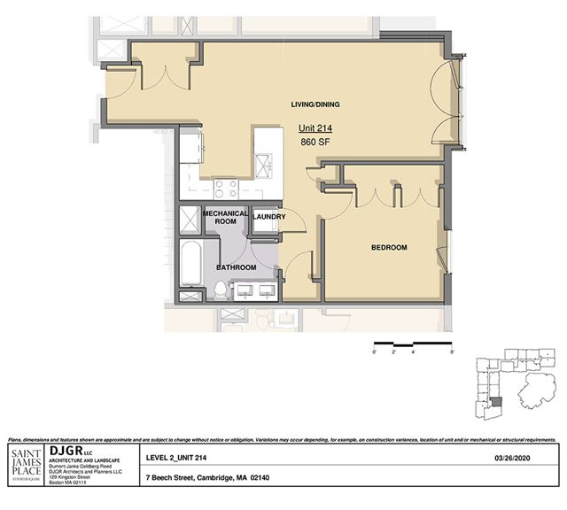
Unit 214

St James Place
Sold
Sold
1
1
860
Unit 214 details
Unit 214 is now sold.
Check out available nearby condos below.