



















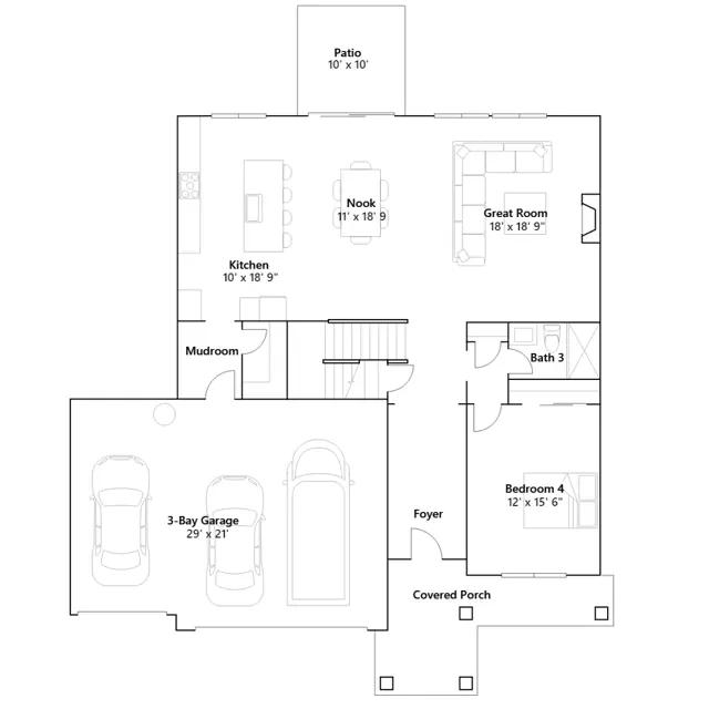
This two-story home has a great layout for busy families. The front door opens to a two-story foyer with an attached bedroom perfect for guests, leading to an open living area with a back patio. Upstairs are three bedrooms, including the owners suite with a full bathroom, plus a versatile bonus room.
Stay informed with Livabl updates on new community details and available inventory.