





































Get additional information including price lists and floor plans.
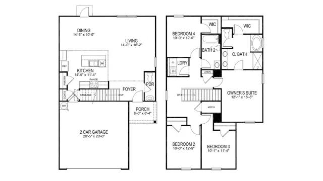
Welcome to the Aisle, a new home floor plan at Park Place in Panama City, Florida. The Aisle is our only two-story floor plan available currently at Park Place, featuring a spacious open kitchen and living room design on the bottom floor, and a thoughtfully laid out upstairs that feels large and cozy. The Aisle floor plan is a spacious 4-bedroom, 2.5 bathroom, with 1,960 square feet and includes a two-car garage. On the outside you will notice vinyl siding and a concrete walkway to the front door, which is covered by the second level. On the rear of the home, there are two backdoors covered by an awning with a concrete pad with room to sit on your back patio and enjoy the beautiful sunsets of Panama City. As you enter this home, you will think of endless possibilities for laying out your home with an open kitchen, living room, and dining area all in one that enc...
Stay informed with Livabl updates on new community details and available inventory.