






























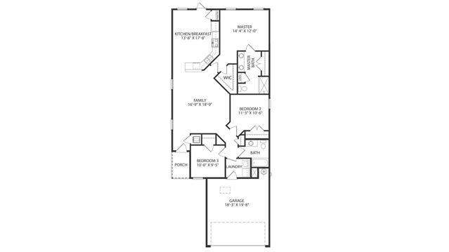
Welcome to the Celeste, a new home design at Liberty in Panama City, Florida. The Celeste floor plan is a 3-bedroom, 2 bathroom, 1,384 square feet open concept home. As you enter, you will notice the living room as the focal point of the home as it opens to the kitchen, hallway, and primary bedroom. The main areas are made with beautiful EVP flooring and carpet in the bedrooms. The kitchen has granite countertops and shiny stainless-steel appliances including a stove, microwave, and dishwasher. The bathroom also has granite countertops and EVP flooring, and the primary bathroom features a double vanity while the guest bathroom features a single vanity. Like all homes in Liberty, the Celeste includes a Home is Connected smart home technology package which allows you to control your home with your smart device while near or away. On the outside you will see du...