hero-image-0
hero-image-1

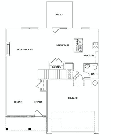
Mallow Plan

Henderson Glenn
Sold
Sold
4
2
1
From 2,148
unit-banner-imageunit-banner-imageunit-banner-image
Mallow Plan details
Mallow Plan is now sold.
Check out available nearby plans below.