FEATURED
100
Zen Mahogany
Mahogany, Calgary
122
121
98
99
97
63
120
ZEN Riverstone West offers charm and convenience in southeast Calgary
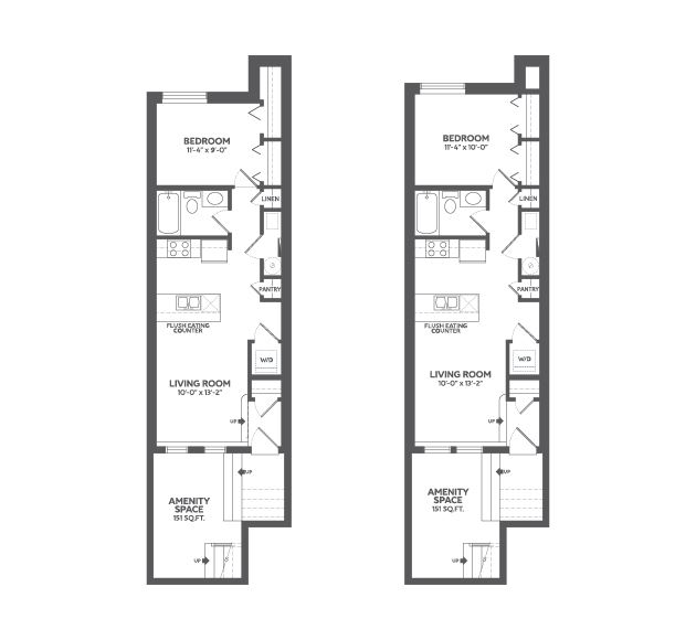
ZEN Riverstone West is a new townhouse development by Avalon Master Builder under construction at 345 Cranbrook Square Southeast, Calgary. Available homes range in price from $202,000 to $440,000. ZEN Riverstone West has a total of 113 units wi ...