FEATURED
D1
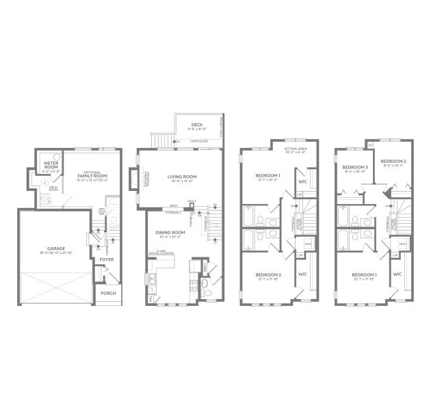
Goodwin
Belmont, Calgary
D
B1
B
Elba
The Restaare in Belmont
Cida
Madison
Monocle
Mahogany, Calgary
ZEN Riverstone West offers charm and convenience in southeast Calgary
ZEN Riverstone West is a new townhouse development by Avalon Master Builder under construction at 345 Cranbrook Square Southeast, Calgary. Available homes range in price from $202,000 to $440,000. ZEN Riverstone West has a total of 113 units wi ...