FEATURED
D1
Goodwin
Belmont, Calgary
B
B1
D
Cida
The Restaare in Belmont
Brubeck
Brightside on Main
Seton, Calgary
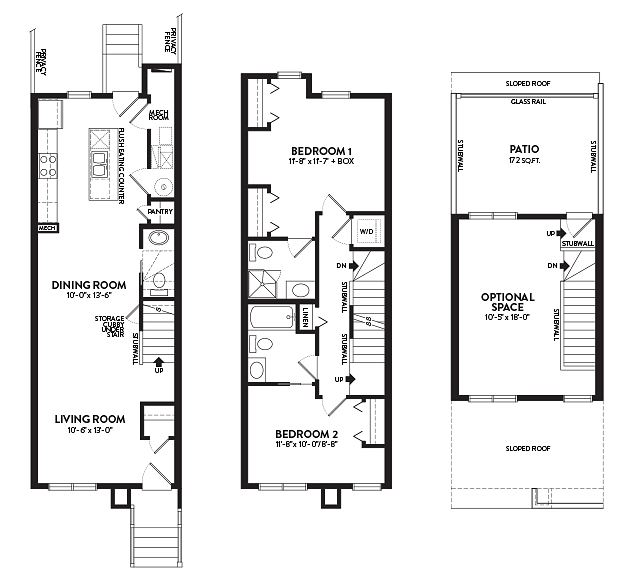
2 BEDROOM TERRACE HOMES
Sonoma at Belmont
2 BEDROOM TOWNHOMES
ZEN Abrio joins Calgary’s exciting community of Seton
ZEN Abrio is one of the newest communities from Avalon Master Builder. This townhouse development is comprised of 76 homes and is in Calgary’s southeastern community of Seton, directly south of Auburn Bay and east of Cranston.