hero-image-0
hero-image-1
hero-image-2
hero-image-3

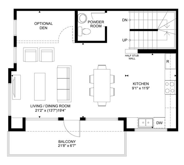
Dogwood - End Plan

Wolf Run at Trinity Hills
Sold
Sold
2
2
1
From 1,487
unit-banner-imageunit-banner-imageunit-banner-image
Dogwood - End Plan details
Dogwood - End Plan is now sold.
Check out available nearby plans below.

Interested? Receive updates

Stay informed with Livabl updates on new community details and available inventory.