hero-image-0
Waterside at Mahogany by Logel...
For sale
For sale
Pricing coming soon
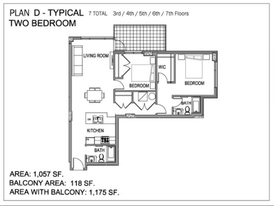
2
2
From 1,057
unit-banner-imageunit-banner-imageunit-banner-image
Plan D Typical details

Contact sales center

Get additional information including price lists and floor plans.

Available homes

Show all available homes

Interested? Receive updates

Stay informed with Livabl updates on new community details and available inventory.