FEATURED
The Elgin
Advocate Building
Downtown West End, Calgary
The Kingston
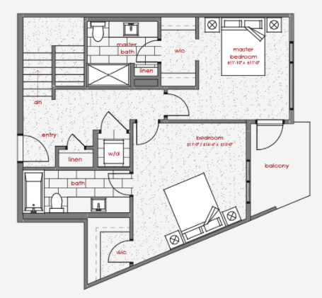
E2-B
Aspen Village East Haven Building 2
Springbank Hill, Calgary
D2
The Ellington
Lincoln
Sunalta, Calgary
The Winton
The Fairbanks
The Astaire