hero-image-0

#9 Royal Birch Cove

The Villas at Birch Point
Sold
Sold
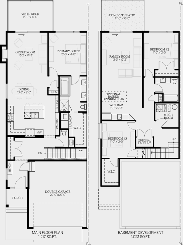
3
2
1
2,240
#9 Royal Birch Cove details
unit-banner-image
unit-banner-image
unit-banner-image
#9 Royal Birch Cove is now sold.
Check out available nearby homes below.

Interested? Receive updates

Stay informed with Livabl updates on new community details and available inventory.