hero-image-0

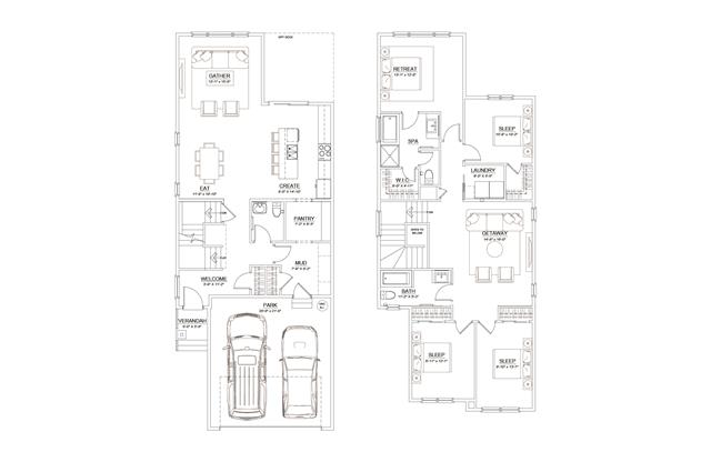
206 Cornerstone Manor

The Duplexes at Cornerstone
Sold
Sold
4
2
1
2,220
206 Cornerstone Manor details
unit-banner-image
unit-banner-image
unit-banner-image
206 Cornerstone Manor is now sold.
Check out available nearby homes below.

Interested? Receive updates

Stay informed with Livabl updates on new community details and available inventory.