Camrose
Encore II - West Grove Estates
West Springs, Calgary
Nanton
Macleod
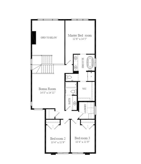
Macleod 3ST
Parkland
Glenbow 3ST
Champion 3ST
Champion