hero-image-0

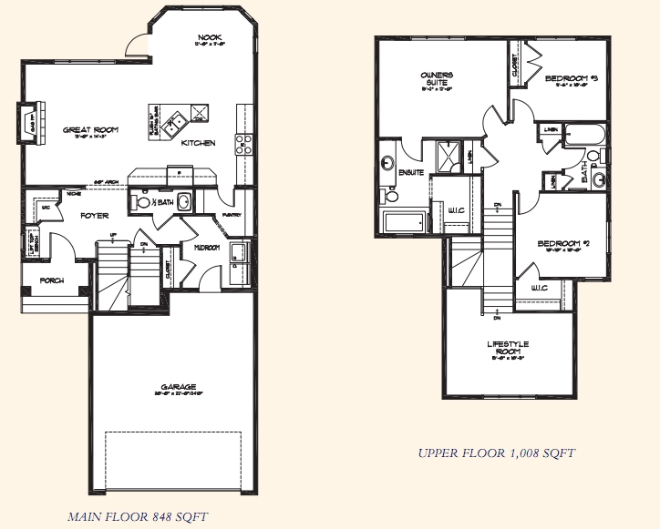
Excalibur I Plan

Silverado by Lifestyle Homes
Sold
Sold
3
From 1,856
unit-banner-imageunit-banner-imageunit-banner-image
Excalibur I Plan details
Excalibur I Plan is now sold.
Check out available nearby plans below.