hero-image-0

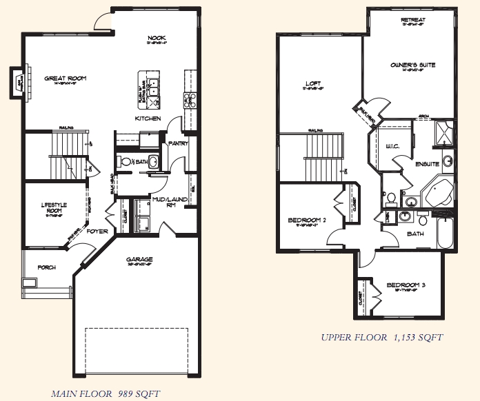
Belmont I Plan

Silverado by Lifestyle Homes
Sold
Sold
3
From 2,142
unit-banner-imageunit-banner-imageunit-banner-image
Belmont I Plan details
Belmont I Plan is now sold.
Check out available nearby plans below.