New Homes for Sale
Articles
Professionals
Log in
Sign up
Photos 1
Videos 0
Map
Interactive floor plan 0
Virtual 0
Unit 4303
By
Logel Homes
|
Seton West Building 4
Community
Get updates
Save
Request info
Request info
Community
Request info
Get updates
Save
Request info
Seton West Building 4
Get updates
Request info
Sold
Sold
2
2
971
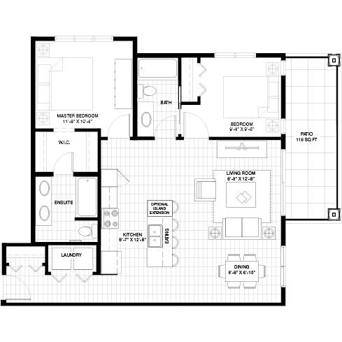
Unit 4303 details
Address:
Calgary, AB T3M 3N8
Plan type:
Suite
Beds:
2
Full baths:
2
SqFt:
971
Ownership:
Condominium
Interior size:
971 SqFt
Balcony size:
116 SqFt
Floor #:
3
Unit 4303 is now sold.
Check out available nearby condos below.
Similar 2 bedroom condos nearby
view all
FEATURED
3310
Seton West Phase 2 - Building 3
$289,900
Seton, Calgary
FEATURED
3209
Seton West Phase 2 - Building 3
$404,900
Seton, Calgary
FEATURED
3301
Seton West Phase 2 - Building 3
$459,900
Seton, Calgary
FEATURED
3107
Seton West Phase 2 - Building 3
$399,900
Seton, Calgary
FEATURED
3101
Seton West Phase 2 - Building 3
$414,900
Seton, Calgary
FEATURED
3407
Seton West Phase 2 - Building 3
$459,900
Seton, Calgary
FEATURED
3411
Seton West Phase 2 - Building 3
$429,900
Seton, Calgary
FEATURED
3303
Seton West Phase 2 - Building 3
$374,900
Seton, Calgary