hero-image-0

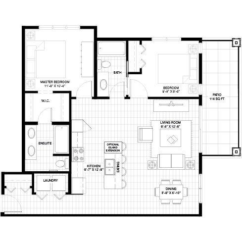
Cohen 2 Plan

Seton West Building 4
Sold
Sold
2
2
From 971
Cohen 2 Plan details
Cohen 2 Plan is now sold.
Check out available nearby plans below.