hero-image-0
hero-image-1
hero-image-2
hero-image-3
hero-image-4
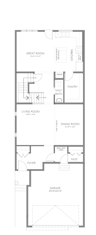
Sage Hill Crest Townhomes
Sold
Sold
4
3
1
From 2,496
Savoy Plan details
Savoy Plan is now sold.
Check out available nearby plans below.