hero-image-0

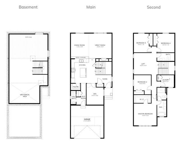
Roseate Plan

Saddlestone
Sold
Sold
4
2
1
From 2,369
unit-banner-imageunit-banner-imageunit-banner-image
Roseate Plan details
Roseate Plan is now sold.
Check out available nearby plans below.