hero-image-0

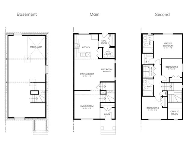
Amber Plan

Saddlestone
Sold
Sold
3
2
1
From 1,525
unit-banner-imageunit-banner-imageunit-banner-image
Amber Plan details
Amber Plan is now sold.
Check out available nearby plans below.