hero-image-0
hero-image-1

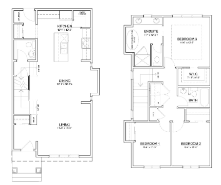
The Sedge II Plan

By

Truman

   |   

Rangeview

Rangeview
Not Available
Not available
Pricing unavailable
2
3
2
1
From 1,512
The Sedge II Plan details

Contact sales center

Get additional information including price lists and floor plans.

Interested? Receive updates

Stay informed with Livabl updates on new community details and available inventory.