hero-image-0

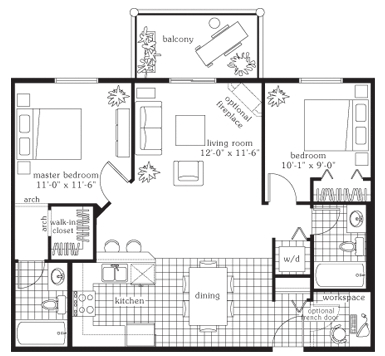
Rundle Plan

Ranchview Vistas
Sold
Sold
2
From 896
unit-banner-imageunit-banner-imageunit-banner-image
Rundle Plan details
Rundle Plan is now sold.
Check out available nearby plans below.