hero-image-0

12709 Crestmont Boulevard SW

By

Trico Homes

   |   

Parallel Bloc

Parallel Bloc
Sold
Sold
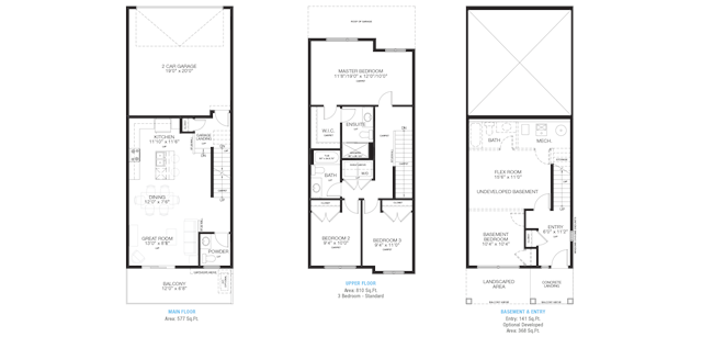
3
2
1
1,528
12709 Crestmont Boulevard SW details
unit-banner-image
unit-banner-image
unit-banner-image
12709 Crestmont Boulevard SW is now sold.
Check out available nearby townhomes below.