hero-image-0
hero-image-1

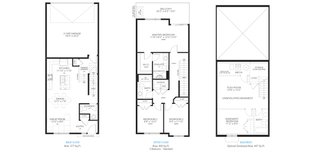
Retreat Plan

By

Trico Homes

   |   

Parallel Bloc

Parallel Bloc
Sold
Sold
2
2
1
From 1,385
unit-banner-imageunit-banner-imageunit-banner-image
Retreat Plan details
Retreat Plan is now sold.
Check out available nearby plans below.