hero-image-0
hero-image-1

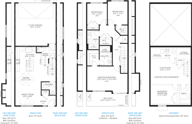
Haven End - RR Plan

By

Trico Homes

   |   

Parallel Bloc

Parallel Bloc
Sold
Sold
3
2
1
From 1,405
unit-banner-imageunit-banner-imageunit-banner-image
Haven End - RR Plan details
Haven End - RR Plan is now sold.
Check out available nearby plans below.