hero-image-0
hero-image-1

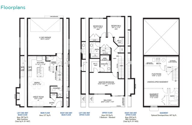
Haven End - L Plan

By

Trico Homes

   |   

Parallel Bloc

Parallel Bloc
Sold
Sold
2
2
1
From 1,407
unit-banner-imageunit-banner-imageunit-banner-image
Haven End - L Plan details
Haven End - L Plan is now sold.
Check out available nearby plans below.