hero-image-0
Mosaic Montage Auburn Bay
Sold
Sold
3
From 1,815
unit-banner-imageunit-banner-imageunit-banner-image
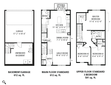
Sylvan Plan details
Sylvan Plan is now sold.
Check out available nearby plans below.