hero-image-0

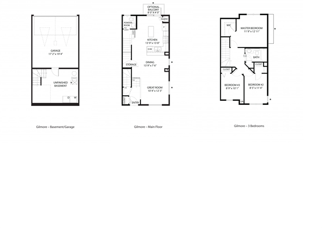
Gilmore Plan

Mosaic Aspen Hills
Sold
Sold
3
1
From 1,203
unit-banner-imageunit-banner-imageunit-banner-image
Gilmore Plan details
Gilmore Plan is now sold.
Check out available nearby plans below.