hero-image-0

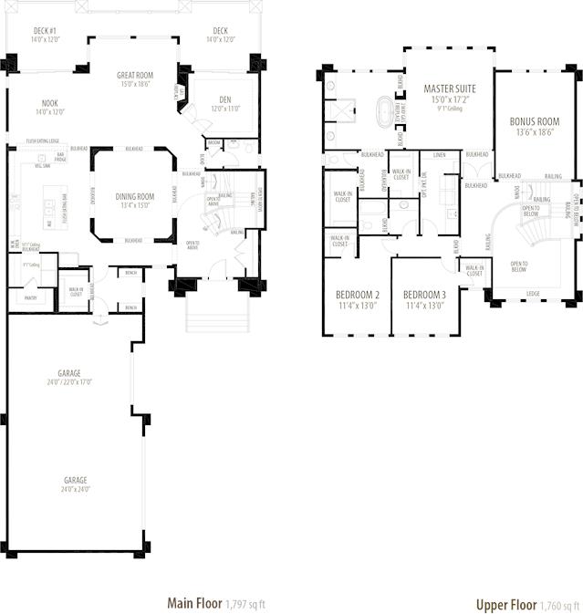
Savannah Plan

Morrison Homes Mahogany
Sold
Sold
3
2
1
From 3,557
unit-banner-imageunit-banner-imageunit-banner-image
Savannah Plan details
Savannah Plan is now sold.
Check out available nearby plans below.