hero-image-0

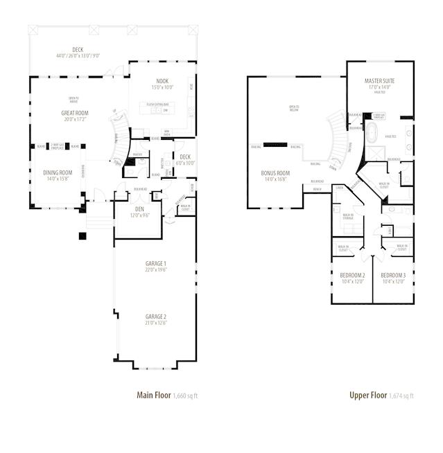
Charleston Plan

Morrison Homes Mahogany
Sold
Sold
3
2
1
From 3,334
unit-banner-imageunit-banner-imageunit-banner-image
Charleston Plan details
Charleston Plan is now sold.
Check out available nearby plans below.