hero-image-0

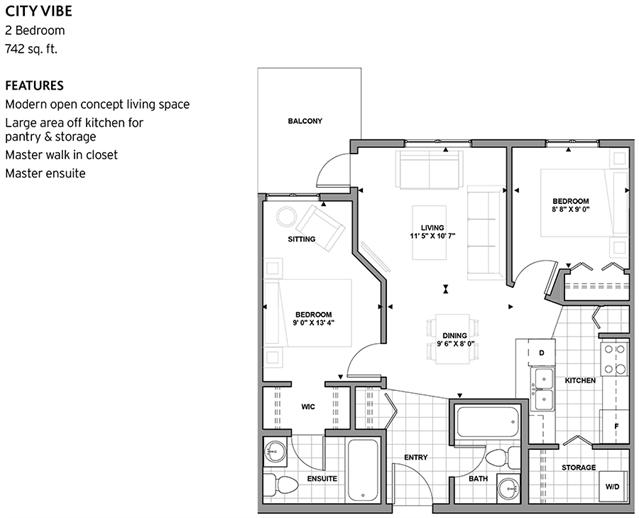
City Vibe Plan

Legacy Gate
Sold
Sold
2
2
From 742
City Vibe Plan details
City Vibe Plan is now sold.
Check out available nearby plans below.