hero-image-0

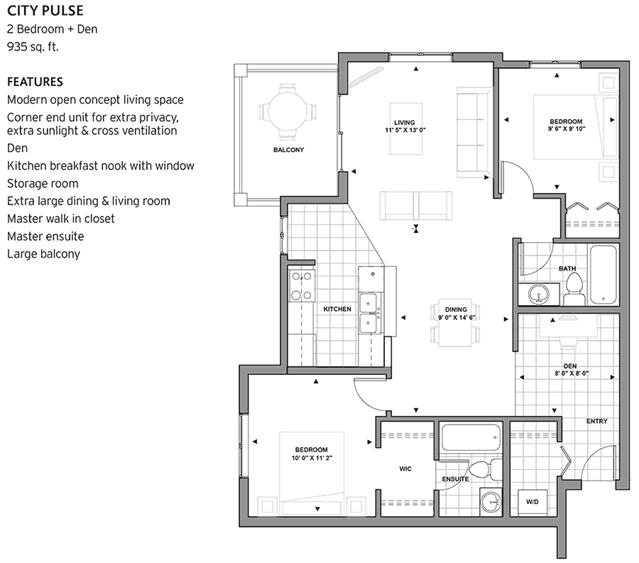
City Pulse Plan

Legacy Gate
Sold
Sold
2
2
1
From 935
unit-banner-imageunit-banner-imageunit-banner-image
City Pulse Plan details
City Pulse Plan is now sold.
Check out available nearby plans below.