hero-image-0
hero-image-1
hero-image-2
hero-image-3
hero-image-4
hero-image-5

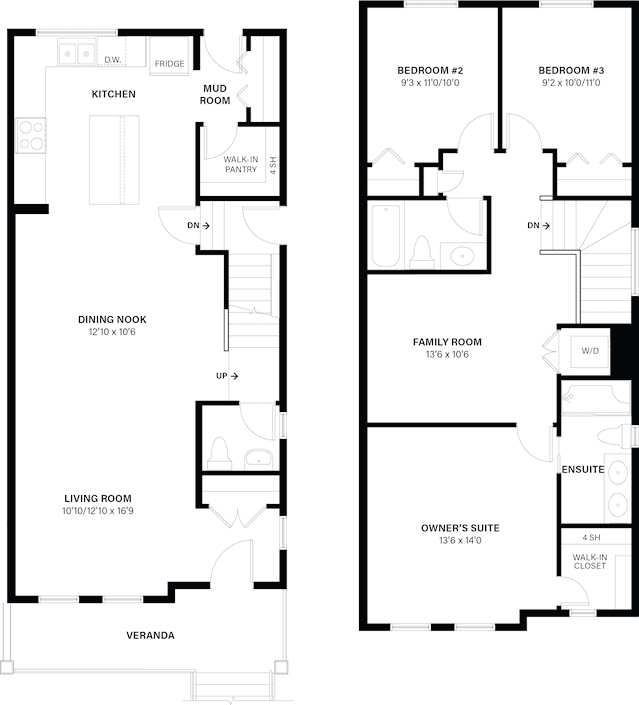
Delta II Plan

By

Shane Homes

   |   

Glacier Ridge

Glacier Ridge
For sale
Virtual Tours
For sale
From $641,000
2
3 - 4
2 - 3
1
From 1,684
Delta II Plan details

Contact sales center

Get additional information including price lists and floor plans.

Interested? Receive updates

Stay informed with Livabl updates on new community details and available inventory.